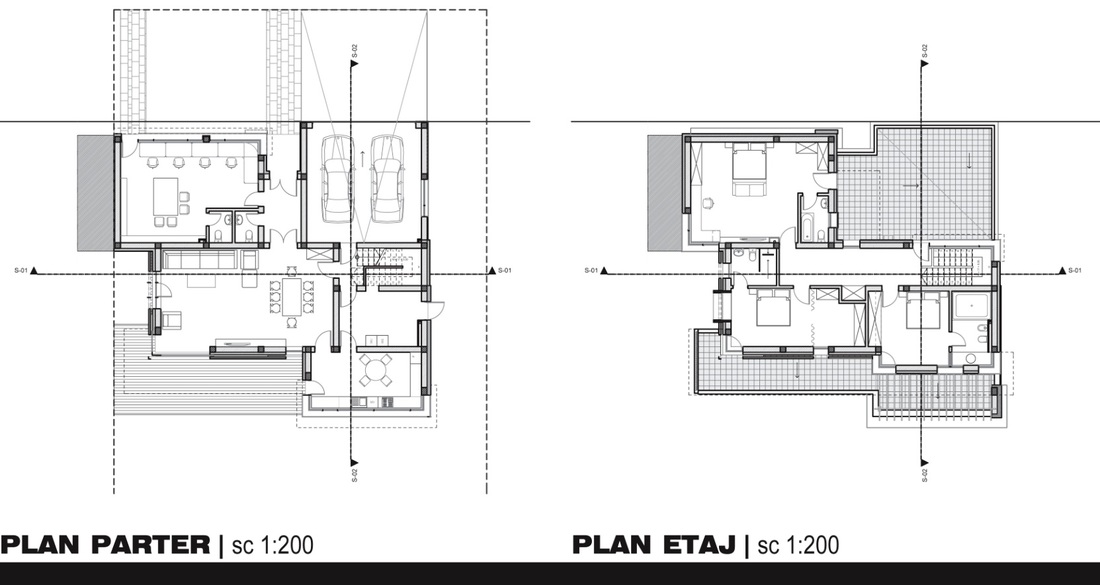
Casa P+1E cu anexa si imprejmuire – Casa SDR
Localizare : Com. Giroc, Jud. Timis
Anul proiectarii : 2014
Suprafata desfasurata : 355 mp
Localizare : Com. Giroc, Jud. Timis
Anul proiectarii : 2014
Suprafata desfasurata : 355 mp
Faza : Executat
Colaborare : SC Fabrica de Proiecte SRL
Publicat de arhipura.com : articol Casa moderna SDR | Timisoara